Skočir Ernest -- Arhitekt, nudim Vam kvalitetno in zanesljivo projektiranje na vseh področjih sodobne arhitekture.
Povpraševanje



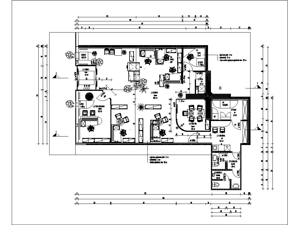
Oprema pisarniških prostorov uprave PEKARNA VRHNIKA d.d.

pisarne PEKARNA VRHNIKA, Vrhnika (leto 1996-1998, p=345 m2)
Oprema caffe bar H

caffe bar H, Ljubljana
Oprema hiše ARBUTINA

oprema hiše Arbutina, Sisak (leto 1983)
Novogradnja mizarska delavnica VENCELJ d.o.o.

mizarska delavnica VENCELJ, Šentvid pri Stični (leto 2001-2002, bp=1.837 m2)